Periwinkle 2 Storey SemiD Renovated for Sale
Price: RM 928,000
Monthly: RM 0

6 Bedrooms

4 Baths

2240 Sqft

Why Choose Periwinkle 2 Storey SemiD Renovated for Sale
No data was found

About The Property

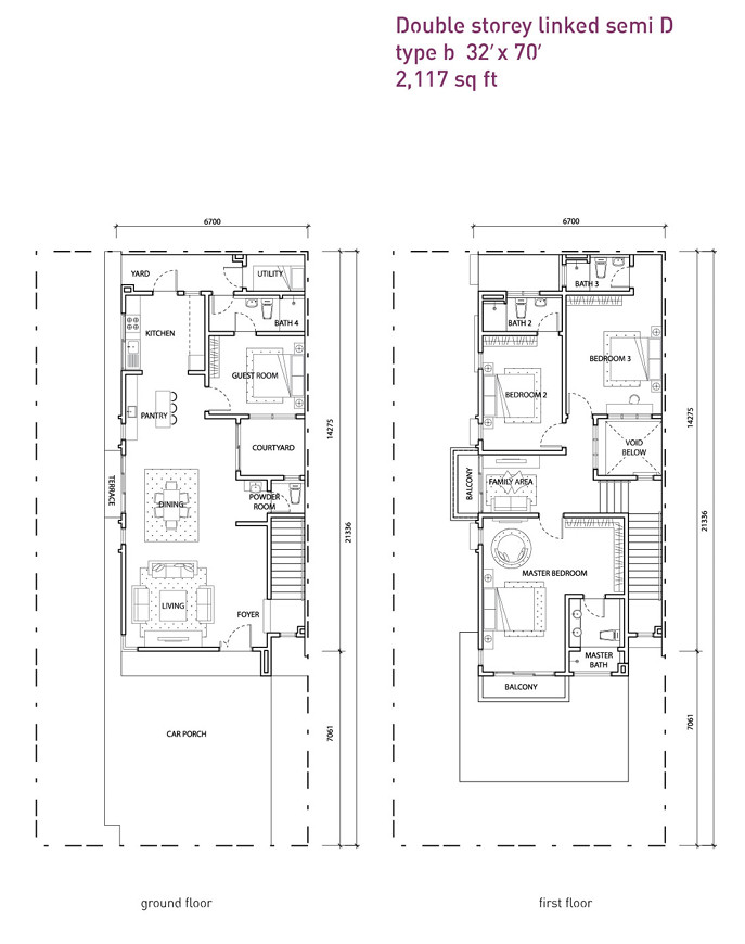
Rimbayu Periwinkle Double Storey Semi D For Sale
WTS

Rimbayu Ijm Periwinkle
2 Storey Semi D
32x70
Build up 2267sqft
4+2 Room 4Bathroom
Good Condition, Renovated
Ground Floor Court Yard Area convert into Room/Store Room
Gate & Guard
24 hours Security
Leasehold Non Bumi
Actual unit
maintenance fees RM 100

Selling RM930k

Call Ken Tan 0146268231

More Details

Price: RM 928,000
Monthly: RM 0

About Locations

KEN TAN CHUN HOO

Share it:

Other Properties...

658073639_10237430249828358_4079130848696155771_n
1.5 Storey Semi-D Warehouse Factory Tmn Perindustrian Kapar Bestari For Sale
RM 4,800,000
324 (7)
Bungalow Land for Sale at The Mines Wellness City | 9,500 sqft
RM 2,400,000
photo_2025-07-30_08-12-59
3 sty shoplot Seksyen 6 Bandar Baru Bangi for Sale
RM 2,200,000
2 (7)
PJS 3 Taman Medan Corner Shop Lot Ground Floor for Rent
RM 16,000
2 (3)
PJS 3 Taman Medan Double Storey Shop Lot for Rent
RM 7,000
533138540_10231380979207541_7766931552386582520_n
Tropicana Metropark Southplace @ Subang Jaya 新商铺出租
RM 10,800